Casa indipendente in vendita

Briosco, Via Giotto
€ 195.000
6 locali 6 locali
424 Mq 424 Mq
4 bagni 4 bagni

Casa indipendente in vendita

Briosco, Via Giotto

Descrizione annuncio

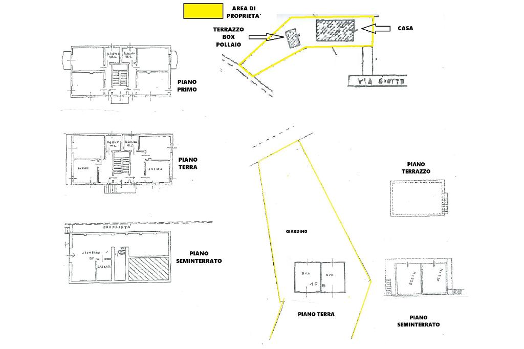
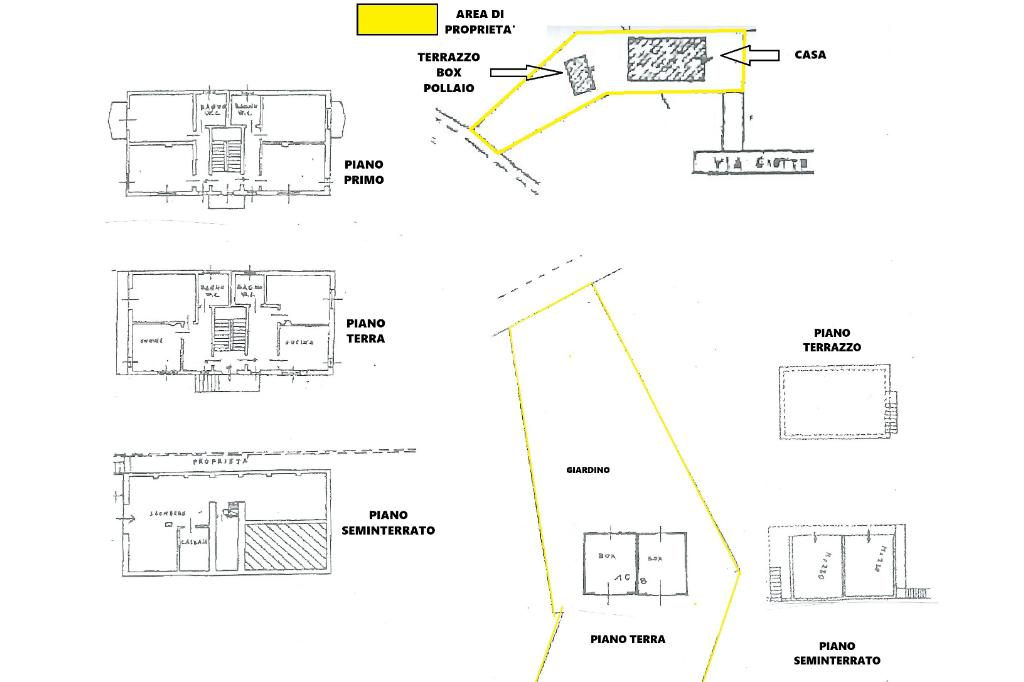
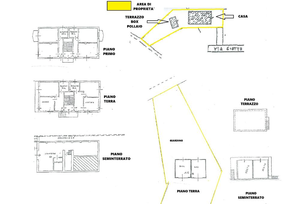
Briosco CASA INDIPENDENTE da ristrutturare con terreno di proprietà.

In zona semi centrale, tranquilla e ben servita, proponiamo in vendita INTERO FABBRICATO attualmente costituito da DUE UNITA' ABITATIVE disposte su due piani fuori terra (zona giorno al piano terra e zona notte al primo piano) collegati da scala interna comune in muratura, oltre a piano sottotetto e piano seminterrato con locali ad uso cantina.

A completare la proprietà giardino, orto e cortile privato per un totale di 470 mq. Ampio box doppio fuori terra con sovrastante lastrico solare di copertura da utilizzare come terrazzo o stenditoio oltre a due vani ad uso pollaio.

L'immobile si presenta COMPLETAMENTE DA RISTRUTTURARE.

Ben collegato con SS36. Nelle vicinanze di Besana Brianza, Carate Brianza, Verano Brianza, Arosio, Inverigo, Veduggio.

Mostra tutto

Nelle vicinanze

Trasporto pubblico Trasporto pubblico
Arosio
Arosio
2,8 Km
Trasporto pubblico
1,9 Km
Z232/Z242 - CARATE B. Agliate-M. Ignoto 17
Z232/Z242 - CARATE B. Agliate-M. Ignoto 17
2,1 Km
Villa Raverio
Villa Raverio
2,3 Km
Ricariche auto elettriche Ricariche auto elettriche
MediaWorld Giussano Bis
2,6 Km
MediaWorld Giussano
2,7 Km
Cinelandia Arosio
2,7 Km
Scuole Scuole
Scuola primaria "Don Beretta"
1,7 Km
Istituto di Istruzione Superiore Amedeo Modigliani
2,3 Km
Scuola Primaria Renzo Pezzani
2,3 Km
Istituto di Istruzione Superiore Mohandas Karamchand Gandhi
2,4 Km
Scuole
2,6 Km
Farmacia Farmacia
Farmacia Comunale
550 m
Farmacia Agliate
2,0 Km
Farmacia Rizzitelli
2,2 Km
Farmacia
2,4 Km
Farmacia Fois
2,8 Km
Ospedali Ospedali
Ospedale Carlo Borella
2,9 Km
Supermercati Supermercati
Sigma
1,9 Km
Lidl
1,9 Km
U2 Supermercato
2,4 Km
Carrefour
2,8 Km
Supermercati
2,8 Km
Negozi Negozi
Medlar's
2,0 Km
La Matta
2,5 Km
Mascheroni Sportswear
2,6 Km
Longoni
2,6 Km
Ul cantun del pan
2,8 Km
Bar Bar
Bar
1,3 Km
MaM Cafè
1,9 Km
Bar Caffetteria Luciano
2,1 Km
Chocolat
2,2 Km
Darkò Cafè
2,4 Km
Ristoranti Ristoranti
Trattoria Birot
750 m
Ristorante Trattoria del ponte
1,3 Km
Fermes Chi
2,0 Km
Il Paguro
2,0 Km
A l'aldea antigua
2,1 Km
Mostra tutto

Caratteristiche

Rif.:
61127858
Piano:
2 di 2 (Piano su più livelli)
Box:
2
Posti auto:
2
Balconi:
4
Camere da letto:
4
Mostra tutto
Prezzo Prezzo
€ 195.000
Rata mutuo Rata mutuo
€ 920 / mese
Spese annue Spese annue
€ 0
Proponi il tuo prezzoProponi il tuo prezzo

Classe Energetica

G
G
G
G
G
G
G
G
G
EP globale non rinnovabile:
299.00 kW h/m² anno
EP invernale del fabbricato:
EP estiva del fabbricato:
Anno di costruzione:
1967
Riscaldamento:
Autonomo
Tipo impianto:
A radiatori
Tipo alimentazione:
Metano

Ti interessa visionare l'immobile?

Fissa un appuntamento  Fissa un appuntamento

Richiedi informazioni

Clicca su Leggi per aprire l'informativa
* Questi campi sono obbligatori

Calcola il tuo mutuo

Semplice e senza impegno
Anticipo

( % )
Mutuo

( % )

pochi semplici passi

inserisci i tuoi dati
Questionario completato
Grazie per aver richiesto un appuntamento senza impegno con un nostro Consulente del Credito e Assicurativo.

Hai inserito correttamente tutti i dati necessari e a breve riceverai una e-mail con un link da convalidare per inviare i tuoi dati.
Affiliato
Studio Sedoni E Co. Srl
Via Monte Grappa, 18 20837 Veduggio Con Colzano (MB)

Il nostro staff


  • Marcello Nava
    Responsabile

  • Alberto Sedoni
    Affiliato

  • Donatella Bozzon
    Coordinatrice

  • Fabio Massa
    Collaboratore
Via Monte Grappa, 18 20837 Veduggio Con Colzano (MB)
Zona: Briosco-Renate- Veduggio
Mostra su mappa
Orari: lunedi' - venerdi' dalle h. 9.00 - 12.30 / 14.30 - 19.30 - sabato chiusura h. 17.00
Affiliato
Studio Sedoni E Co. Srl
Via Monte Grappa, 18 20837 Veduggio Con Colzano (MB)

2026 Tecnocasa Franchising S.p.A. - P. IVA 08365160152 - Via Monte Bianco 60/A 20089 Rozzano (MI). Ogni agenzia ha un proprio titolare ed è autonoma. Privacy policy | Policy utilizzo | Cookie policy